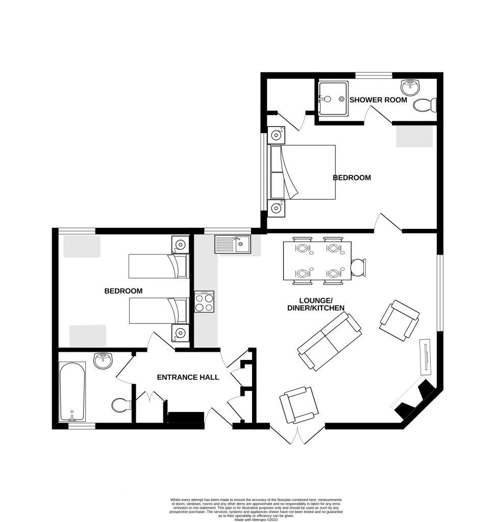
Pentree Floorplan
Sleeps 5 | 2 bedrooms | Friday Changeover | Perfect for families


Enter your details below to be kept up to date with our latest news and special offers. We promise to only send you stuff we know you’ll love!

Like, love and engage with our story on Facebook and instagram!
